
▲完工實拍圖 ©源于·云蘭整裝王
業主的住宅是一套建筑面積為120平米的三室兩廳商品房。業主偏愛優雅浪漫的奶油風格,希望擁有一個開放式廚房,讓居住空間更加自由和開闊。同時,業主特別強調平時生活有收集和陳設愛好,對拓展儲物是硬性需求。
我們根據業主的要求和對家居生活理解,用設計經驗及裝修技巧為客戶打造了一個既實用又美觀的奶油風居住空間。
1、治愈力Max的奶油風裝修:客廳、餐廳等區域采用簡潔的色調,打造明亮溫馨居室,滿足業主審美需求;
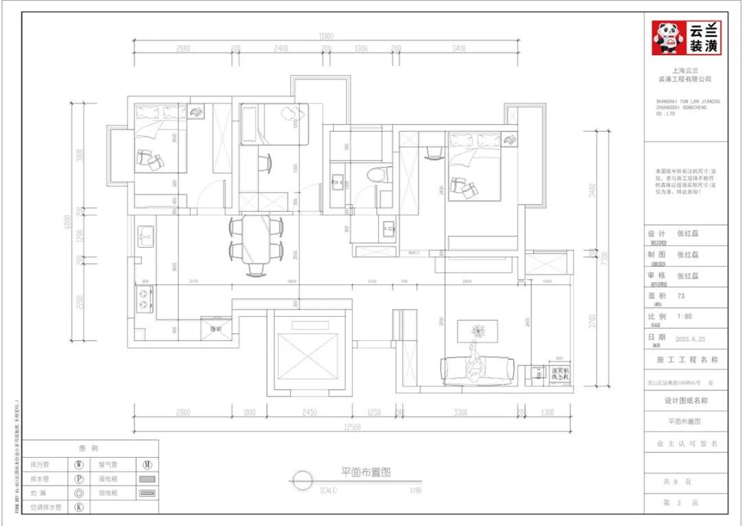
2、對原始結構進行了改造,拆除兩個朝南臥室之間的單磚墻體,以提高儲物空間。同時將廚房改造成開放式,使得整個空間更加開闊和通透;
3、玄關區域進行特別設計,增加了一面墻的儲物空間,提高了空間的利用率;
4、根據業主生活習慣和喜好,定制了進門玄關柜,同時對餐廳進行了簡潔明快的設計,以適應業主的生活習慣......
圖 賞

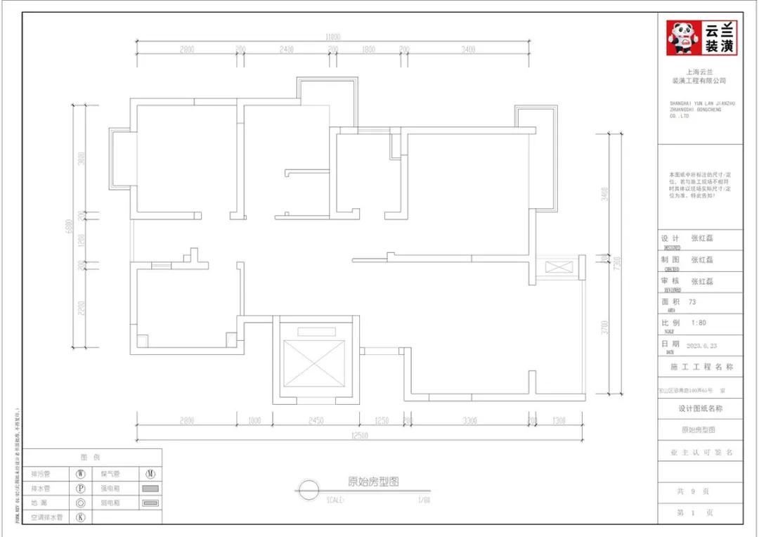
▲原始戶型圖

▲平面布置圖

▲完工實拍圖 ©源于·云蘭整裝王

▲完工實拍圖 ©源于·云蘭整裝王
▲完工實拍圖 ©源于·云蘭整裝王

▲完工實拍圖 ©源于·云蘭整裝王

▲完工實拍圖 ©源于·云蘭整裝王

▲完工實拍圖 ©源于·云蘭整裝王

▲完工實拍圖 ©源于·云蘭整裝王

▲完工實拍圖 ©源于·云蘭整裝王

▲完工實拍圖 ©源于·云蘭整裝王

▲完工實拍圖 ©源于·云蘭整裝王

▲完工實拍圖 ©源于·云蘭整裝王

▲完工實拍圖 ©源于·云蘭整裝王

▲完工實拍圖 ©源于·云蘭整裝王

▲完工實拍圖 ©源于·云蘭整裝王

▲完工實拍圖 ©源于·云蘭整裝王

▲完工實拍圖 ©源于·云蘭整裝王

▲完工實拍圖 ©源于·云蘭整裝王

▲完工實拍圖 ©源于·云蘭整裝王

▲完工實拍圖 ©源于·云蘭整裝王

▲完工實拍圖 ©源于·云蘭整裝王

▲完工實拍圖 ©源于·云蘭整裝王

▲完工實拍圖 ©源于·云蘭整裝王

▲完工實拍圖 ©源于·云蘭整裝王

▲完工實拍圖 ©源于·云蘭整裝王
這套商品新房裝修項目,我們不僅滿足了業主的審美喜好及所有功能需求,而且通過設計改造提升家居生活的溫度和舒適度。如果你也有房子裝修,請聯系我們,建面66㎡11萬一口價真全包,裝修好而不貴的舒適美麗家。
云蘭整裝王精做上海家裝22年,現回頭客及轉介紹業務已占業務總量的4成以上。上海家裝回頭客領先,上海家裝客戶滿意度領先,雙領先口碑品牌。一直堅持免費上門量房,免費360°效果設計,免費清單式報價......10免10包12不限。好而不貴,找云蘭整裝王,真靠譜!
靠譜裝新家熱線
4000-87-3339
掃一掃,有驚喜


您家舒適美麗家 要花多少錢?
3套設計方案免費一鍵獲取您家裝修報價
Copyright ? 2026 YUNLAN-DECORATION. ALL RIGHTS RESERVER