▲完工實拍圖 ©源于·云蘭整裝王
該居室是一對年輕夫妻做婚房,男主人是建筑企業評估員,女主人是幼兒園老師,喜歡養貓,所以該套房子裝修體現柔和、時尚,體現原木奶油風格的舒適、自然之美,線條簡約,造型柔和不呆板,色彩淡雅干凈。
該套是二室一廳一衛,主臥主人住,次臥做成衣帽間加辦公、梳妝臺。該客廳電視背景墻做收納柜內嵌電視,沙發背景用淺灰色涂料,都體現了原木奶油的柔和自然美,端莊整潔,營造了一種自然清爽、簡約而不簡單的氛圍,凸現了主人雍容華貴的氣質和非凡不俗的眼光,體現了主人優雅的內涵和高尚的審美觀點。
圖 賞
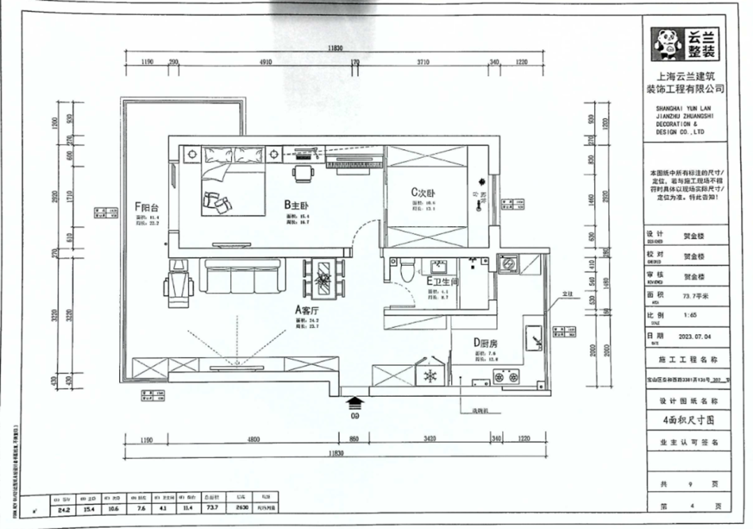
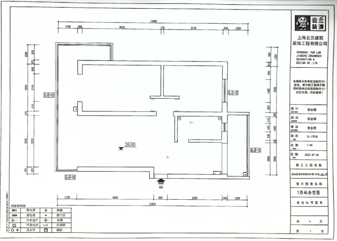
▲原始戶型圖
▲平面布置圖
▲完工實拍圖 ©源于·云蘭整裝王
▲完工實拍圖 ©源于·云蘭整裝王
▲完工實拍圖 ©源于·云蘭整裝王
▲完工實拍圖 ©源于·云蘭整裝王
▲完工實拍圖 ©源于·云蘭整裝王
▲完工實拍圖 ©源于·云蘭整裝王
▲完工實拍圖 ©源于·云蘭整裝王
▲完工實拍圖 ©源于·云蘭整裝王
▲完工實拍圖 ©源于·云蘭整裝王
▲完工實拍圖 ©源于·云蘭整裝王
▲完工實拍圖 ©源于·云蘭整裝王
這套翻新裝修房,我們不僅滿足了業主的審美喜好及所有功能需求,而且通過設計改造提升家居生活的溫度和舒適度。如果你也有房子裝修,請聯系我們,我們會用設計技巧和裝修經驗將花費控制在預算之內,實現您的家居夢想。
云蘭整裝王專做上海家裝22年,現回頭客及轉介紹業務已占業務總量的4成以上。上海家裝回頭客領先,上海家裝客戶滿意度領先,雙領先口碑品牌。一直堅持免費上門量房,免費360°效果設計,免費清單式報價......10免10包12不限。好而不貴,找云蘭整裝王,真靠譜!
靠譜裝新家熱線
4000-87-3339
掃一掃,有驚喜


您家舒適美麗家 要花多少錢?
3套設計方案免費一鍵獲取您家裝修報價
Copyright ? 2026 YUNLAN-DECORATION. ALL RIGHTS RESERVER