▲完工實拍圖 ©源于·云蘭整裝王
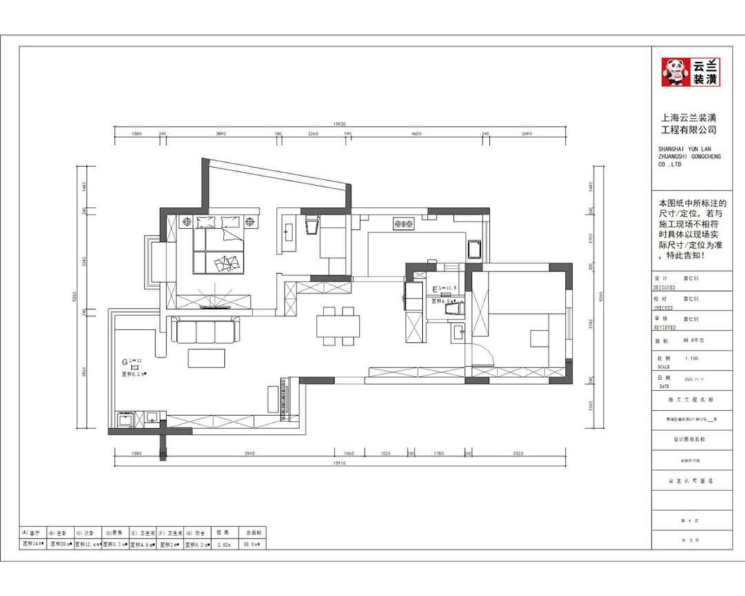
這套房子大概100平米,南北通透,采光特別好,由于這套房子的墻體是現澆的剪刀墻結構,我們沒法對墻體進行改動,因此保留了原來兩室兩廳的格局。
業主夫妻二人從事藝術職業,對裝修有些藝術形式的追求。我們以現代極簡風格為基礎,增加一些原木風格的裝飾,以滿足業主的審美喜好。
1、以現代極簡風格為基礎,增加原木風格的裝飾,滿足業主的藝術審美需求;
2、通過定制家具和巧妙設計,如臥室的懸空柜體、廚房的白色吊柜等,提升了空間的儲物功能;
3、在各個區域使用不同的色彩和材質搭配,營造出不同的視覺美感;
4、衛生間在有限空間內做干濕分區,提升家居生活的舒適和便利......
圖 賞
▲完工實拍圖 ©源于·云蘭整裝王
客廳中,東南亞風格沙發、現代風格長柜、日式茶幾、中式逍遙椅均為實木創意家具,既滿足了客戶的審美喜好,又實現了功能需求。
▲完工實拍圖 ©源于·云蘭整裝王
客廳設計亮點之一便是沙發背后的整面墻柜。這面墻柜不僅擁有強大的儲物功能,而且其白色的外觀與整個房間的主色調完美融合,營造出一種簡潔而優雅的氛圍。
▲完工實拍圖 ©源于·云蘭整裝王
日式原木茶幾造型優美,色澤沉穩而富有質感,凸顯東方獨特的魅力。這張創意茶幾不僅是一件實用的家具,更是業主夫婦審美喜好和實木家具品質追求的集中體現。
▲完工實拍圖 ©源于·云蘭整裝王

▲完工實拍圖 ©源于·云蘭整裝王
▲完工實拍圖 ©源于·云蘭整裝王
尤為引人注意的是,深色木制酒柜與玄關柜的顏色對比,形成了獨特的視覺美感。玄關柜采用了白色木質材質,與深色玻璃酒柜遙相呼應,共同營造出一種穩重而不失活力的氛圍。

▲完工實拍圖 ©源于·云蘭整裝王
▲完工實拍圖 ©源于·云蘭整裝王
臥室以白色和灰色為主色調,營造出一個簡潔、明亮的睡眠環境。大床、儲物柜和床頭柜等家具均采用簡潔的線條和實用的設計,滿足了客戶的功能需求。

▲完工實拍圖 ©源于·云蘭整裝王

▲完工實拍圖 ©源于·云蘭整裝王
▲完工實拍圖 ©源于·云蘭整裝王
廚房以白色、木色和灰色為主色調,營造出簡潔明亮的烹飪空間。白色吊柜與灰色臺面相得益彰,下方黑色爐灶和烤箱的加入,不僅美觀大方,更提升了廚房的實用性。
▲完工實拍圖 ©源于·云蘭整裝王
木質櫥柜的溫潤質感與大理石臺面的堅硬冰冷形成對比,增添了空間的層次感。插座和開關的布局合理,滿足各種電器的使用需求。



▲完工實拍圖 ©源于·云蘭整裝王
入戶玄關,我們根據房型和業主的功能需求,定制了一款獨特造型的玄關柜。巧妙利用了玄關的空間,既美觀又實用。人體工學換鞋凳設計方便業主日常出入時整理儀容。柜子下方鏤空,可以整齊地擺放多雙鞋子,滿足了業主對于鞋履收納的需求。



這套現代極簡風裝修項目,我們不僅滿足了業主的審美喜好及所有功能需求,而且在細節處以求提升生活的品質和格調。如果你也喜歡這種裝修風格,請聯系我們,建面66平11萬一口價真全包,裝修好而不貴的舒適美麗家。
云蘭整裝王專做上海家裝22年,現回頭客及轉介紹業務已占業務總量的4成以上。上海家裝回頭客領先,上海家裝客戶滿意度領先,雙領先口碑品牌。一直堅持免費上門量房,免費360°效果設計,免費清單式報價......10免10包12不限。好而不貴,找云蘭整裝王,真靠譜!
靠譜裝新家熱線
4000-87-3339
掃一掃,有驚喜


您家舒適美麗家 要花多少錢?
3套設計方案免費一鍵獲取您家裝修報價
Copyright ? 2026 YUNLAN-DECORATION. ALL RIGHTS RESERVER