
▲完工實拍圖 ©源于·云蘭整裝王
本套住宅設計以數學大師笛卡爾的坐標系為靈感,將居住空間巧妙地劃分為四大核心要素,分別體現傳統風水、寵物友好、空間開放性以及人文關懷。
在這個設計中,“家”被賦予了數學坐標系中“原點”的象征意義,它是生活的核心,是所有軌跡的起始和終點。在這里,每個家庭成員都能找到屬于自己的位置,共同編織出生活的多維度畫卷。
1、設計尊重并融入了傳統風水的原則,通過精心的空間布局和自然光線的引入,確保每個角落都能帶來正能量和舒適感;
2、開放空間設計,開放式廚房、通透的客廳+靈活的隔斷,讓家庭成員之間的互動更加自然流暢;
3、特別設計了一系列寵物友好的元素,如低矮的窗臺、寵物專屬的活動區域和易于清潔的材料,讓寵物成為家庭和諧的一部分;
4、整體設計不僅關注物理空間,更注重居住者的情感需求。通過溫暖的色調、舒適的家具和個性化的裝飾,打造出一個充滿愛和關懷的家。
圖 賞
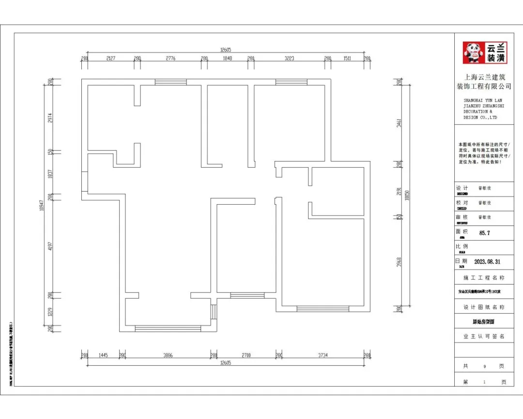
▲原始戶型圖
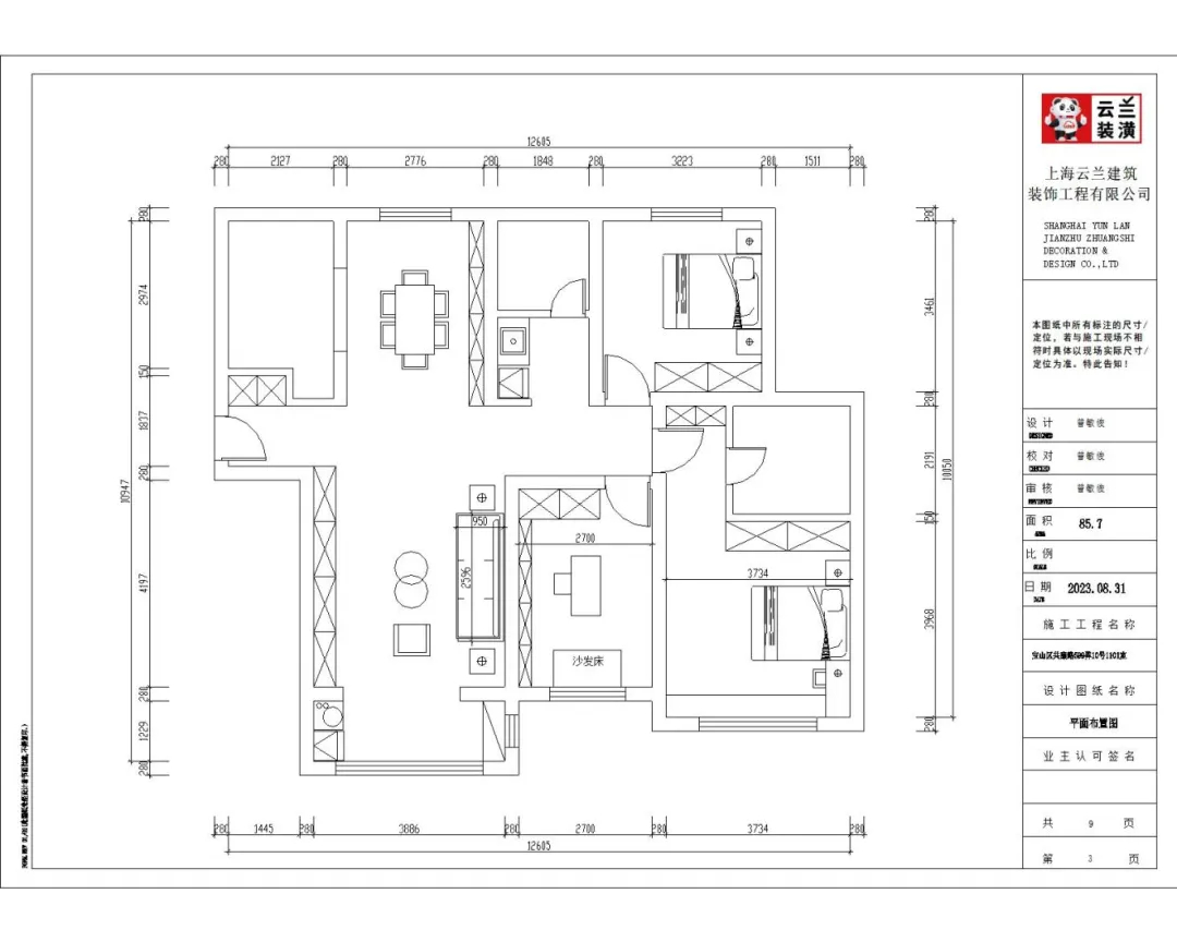
▲平面布置圖


▲完工實拍圖 ©源于·云蘭整裝王

▲完工實拍圖 ©源于·云蘭整裝王

▲完工實拍圖 ©源于·云蘭整裝王

▲完工實拍圖 ©源于·云蘭整裝王



▲完工實拍圖 ©源于·云蘭整裝王

▲完工實拍圖 ©源于·云蘭整裝王
云蘭整裝王專做上海家裝22年,現回頭客及轉介紹業務已占業務總量的4成以上。上海家裝回頭客領先,上海家裝客戶滿意度領先,雙領先口碑品牌。一直堅持免費上門量房,免費360°效果設計,免費清單報價......10免10包12不限。好而不貴,找云蘭整裝王,真靠譜!
靠譜裝新家熱線
4000-87-3339
掃一掃,有驚喜


您家舒適美麗家 要花多少錢?
3套設計方案免費一鍵獲取您家裝修報價
Copyright ? 2026 YUNLAN-DECORATION. ALL RIGHTS RESERVER