
▲完工實拍圖 ©源于·云蘭整裝王
這套聯排別墅的業主夫婦均為各自行業內精英人士,他們對生活的追求同樣精益求精,夫婦二人偏愛商務風格的嚴謹與高雅,對色彩有著獨到的見解,尤其鐘情于沉穩色調所帶來的內斂與力量感,并力求每一個細節都能體現不凡的品味與格調。
我們在裝修設計上采用了現代簡約風格,以黑白灰三色作為基調,強化空間的層次感和立體感,賦予了整個居所一種低調而神秘的氣息,讓人在踏入家門的一刻便能感受到那份與眾不同的品質生活。
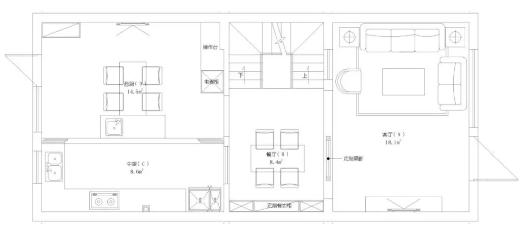
1、客廳采用深灰色沙發和淺灰色地磚,搭配創意燈飾和家具,營造出整潔、大氣的空間氛圍;
2、餐廳設計西廚島臺和組合電視柜,增加水槽設計,提升用餐便利性和空間層次感;
3、廚房采用高低臺設計,臺面選用魚肚白石英石,門為深色玻璃推拉門,兼顧美觀與實用;
4、衛生間干區設1.6米長臺盆和小洗衣機,濕區裝電熱毛巾架和移動推拉門淋浴房,高效利用空間且易于清潔......
圖 賞
▲原始戶型圖
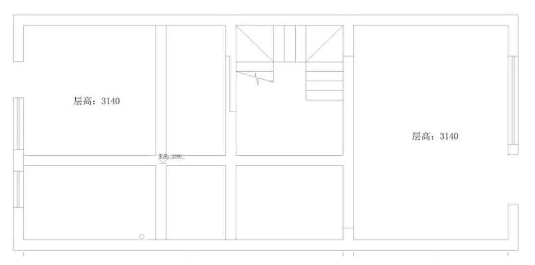
▲平面布置圖
▲完工實拍圖 ©源于·云蘭整裝王

▲完工實拍圖 ©源于·云蘭整裝王
▲完工實拍圖 ©源于·云蘭整裝王
▲完工實拍圖 ©源于·云蘭整裝王
▲完工實拍圖 ©源于·云蘭整裝王
▲完工實拍圖 ©源于·云蘭整裝王
▲完工實拍圖 ©源于·云蘭整裝王
▲完工實拍圖 ©源于·云蘭整裝王
▲完工實拍圖 ©源于·云蘭整裝王

這套聯排別墅項目,我們不僅滿足了業主的審美喜好及所有功能需求,而且通過設計改造提升家居生活的溫度和舒適度。如果你也有房子裝修,請聯系我們,建面66㎡11萬一口價32項真全包,裝修好而不貴的舒適美麗家。
云蘭整裝王專做上海家裝22年,現回頭客及轉介紹業務已占業務總量的4成以上。上海家裝回頭客領先,上海家裝客戶滿意度領先,雙領先口碑品牌。一直堅持免費上門量房,免費360°效果設計,免費清單報價......10免10包12不限。好而不貴,找云蘭整裝王,真靠譜!
靠譜裝新家熱線
4000-87-3339
掃一掃,有驚喜


您家舒適美麗家 要花多少錢?
3套設計方案免費一鍵獲取您家裝修報價
Copyright ? 2026 YUNLAN-DECORATION. ALL RIGHTS RESERVER