該項目房子面積為95個平方,業主裝修預算不是很多。由于是磚混結構的老房子,存在破裂、滲水等諸多問題,我們在修繕工程上花費了不少預算。所以該套房主要裝修難題在于怎樣用僅剩的裝修預算做大戶型房子,并確保美觀和品質。核算下來,能以極低的預算做出這樣的品質和效果,相信在裝修行業內找不出第二家。
針對墻頂面的開裂問題,我們運用頂面整體石膏板吊頂的工藝,既解決了開裂問題,又增加了頂面的美觀度。針對臥室陽臺墻面滲水的問題,我們采用了最先進的防水材料,有效地阻止了滲水的再次發生,確保墻面持久如新。
圖 賞
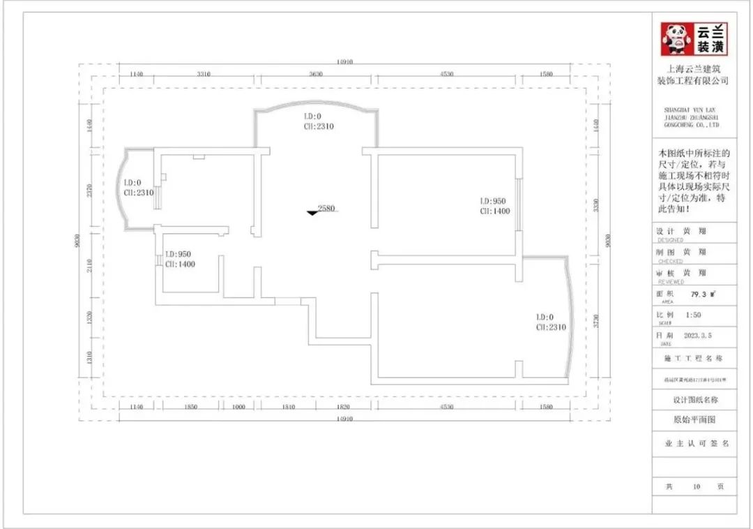
▲原始戶型圖
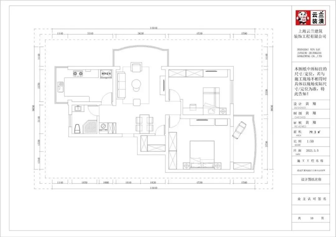
▲平面布置圖
▲完工實拍圖 ©源于·云蘭整裝
在客廳空間的設計上,我們采用了暖白色調,并用極具現代感的軟裝進行搭配。為了增加客廳的通透感,我們將陽臺與客廳打通,這樣可以為業主帶來更好的居住體驗。
▲完工實拍圖 ©源于·云蘭整裝
▲完工實拍圖 ©源于·云蘭整裝
▲完工實拍圖 ©源于·云蘭整裝
由于該套房建筑設計原因,原有餐廳區域比較尷尬,處在入戶門角落而且是臥室拐角處,”大而顯窄“。我們通過將餐廳后移,利用一部分空間改造出一個儲物間,這樣一來不僅有了單獨的收納空間,而且餐廳與客廳一體貫通,顯得通透美觀。
▲完工實拍圖 ©源于·云蘭整裝
▲完工實拍圖 ©源于·云蘭整裝
從預算角度考量,臥室我們以簡化的形式處理。吊頂簡約造型、墻面暖白色乳膠漆,避免了過多的裝飾花費。為了增加質感,我們特意選擇了同色系的糯白皮包頭床、白色通頂衣柜,這樣的組合不僅讓空間顯得寬敞明亮,還增加了整體的美觀度。
▲完工實拍圖 ©源于·云蘭整裝
▲完工實拍圖 ©源于·云蘭整裝
廚房區域我們采用了U字型廚柜,這種設計能夠讓取、洗、切、炒、擺的烹飪流程更流暢高效。釉白色柜身增添家居質感,白色臺面美觀、耐用、易于打理。
▲完工實拍圖 ©源于·云蘭整裝
▲完工實拍圖 ©源于·云蘭整裝
衛生間容易積聚潮氣,因此裝修時要特別注重通風設計。我們將淋浴房設計為鉆石形,并遠離窗戶,這樣可以提高洗澡時的舒適度,也有助于快速排出潮氣,保持衛生間干燥舒適。
▲完工實拍圖 ©源于·云蘭整裝
為了提高空間利用率,我們將馬桶和臺盆分別放置在淋浴房兩側。不僅提高了空間的利用率,還讓動線變得更加流暢,方便業主在衛生間內進行各種活動。
▲完工實拍圖 ©源于·云蘭整裝
進門玄關處,地面鋪的實木復合地板,左邊定制了能嵌入洗衣機的收納柜,中間鏤空可放置挎包、鑰匙等,底部鏤空處與常規鞋等高方便換室內拖鞋,非常實用。
▲完工實拍圖 ©源于·云蘭整裝
PS:內嵌洗衣機的定制柜設計看似簡單,但是如果沒有過硬的隱蔽工程施工技術,后續洗衣機必然會出現滲水、漏水問題。云蘭整裝擁有24項上下水排放工藝,抗滲漏、抗開裂、抗變形,避免弊病遺留,全面保障施工品質!而且隱蔽工程終生質保,免除客戶后續憂患。
這套老房翻新項目我們以低預算,滿足了業主的審美喜好及所有功能需求。而且在細節處精心設計以求提升著家居生活的溫度和舒適度。如果你也有老房需要翻新,預算又不是很充裕,一定要聯系我們,我們會用設計技巧和裝修經驗將花費控制在預算之內,實現您的家居夢想。
靠譜裝新家熱線
4000-87-3339
掃一掃,有驚喜


您家舒適美麗家 要花多少錢?
3套設計方案免費一鍵獲取您家裝修報價
Copyright ? 2026 YUNLAN-DECORATION. ALL RIGHTS RESERVER