▲完工實拍圖 ©源于·云蘭整裝
| 裝修主材 | |
|
客餐廳臥室地面 |
潔牌 |
|
廚房地面 |
鵬諾 |
| 乳膠漆 | 多樂士 |
|
衛生間地面 |
鵬諾 |
該居室是一對年輕夫妻做婚房,男主人是建筑企業評估員,女主人是幼兒園老師,喜歡養貓,所以該套房子裝修體現柔和、時尚,體現原木奶油風格的舒適、自然之美,線條簡約,造型柔和不呆板,色彩淡雅干凈。
該套是二室一廳一衛,主臥主人住,次臥做成衣帽間加辦公、梳妝臺。該客廳電視背景墻做收納柜內嵌電視,沙發背景用淺灰色涂料,都體現了原木奶油的柔和自然美,端莊整潔,營造了一種自然清爽、簡約而不簡單的氛圍,凸現了主人雍容華貴的氣質和非凡不俗的眼光,體現了主人優雅的內涵和高尚的審美觀點。
圖 賞
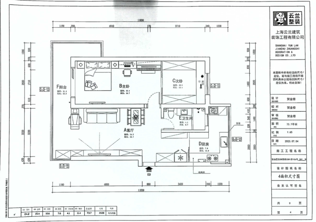
▲原始戶型圖
▲平面布置圖
▲完工實拍圖 ©源于·云蘭整裝
客廳面積不大,但經過設計師的手筆,讓空間緊湊不擁擠,電視墻做成整面定制柜和鏤空柜相結合,既增加儲物又不顯單調、擁擠,灰色柜體和地板相呼應,啞白色門板簡單、大氣,白絨沙發搭配地毯立刻檔次提高很多。吊頂造型上采用雙眼皮吊頂,時尚又大氣。地面采用淺灰色木紋地板。造型和色調上無不給人以簡潔、大氣、時尚的感覺。
▲完工實拍圖 ©源于·云蘭整裝
窗簾紗簾和沙發相呼應,遮光簾加地板和柜體相配襯,電視柜兩邊的敞開區,讓空間活躍很多,通長電視柜也很大氣,沙發背景的掛畫,讓很特別。
▲完工實拍圖 ©源于·云蘭整裝
餐廳放一個700*1200的小餐桌,平時家里只有2個人吃飯,夠主人用,白色巖板臺面,奶咖色桌椅,白色的椅子,上方小吊燈,很靈活輕巧,體現了主人的審美情操。
▲完工實拍圖 ©源于·云蘭整裝
餐邊柜上柜木質,上柜白色門板加上條形,很有藝術氣息,中間鏤空,讓空間顯得更寬敞。
▲完工實拍圖 ©源于·云蘭整裝
該套房子廚房空間很大,U型三面櫥柜,顏色簡潔明快,材質要干凈和好打理,白色的吊頂和米色的上櫥柜、下櫥柜相呼應,石英石臺面干凈、好打理,各種廚房電器全部配齊,滿足主人制作各種美食的需求。
▲完工實拍圖 ©源于·云蘭整裝
▲完工實拍圖 ©源于·云蘭整裝
主臥米白色床頭背景,和米色床、床頭柜,咖色窗簾+白色沙簾,造型以簡潔平板為主,方便打理,體現了原木奶油風格的簡潔、自然,不拘一格。
▲完工實拍圖 ©源于·云蘭整裝
吊頂、移門和套裝門,顏色深淺有序,門邊上一個貓爬架讓整個空間更顯和諧、舒適、環保,給人感覺不僅雅致而且有韻味。
▲完工實拍圖 ©源于·云蘭整裝
次臥整個打通做衣帽間和女主人辦公、化妝區,解決了衣柜儲物空間,工作之余抬頭就是北面綠植,很溫馨,舒適、給人感覺不僅雅致而且有韻味。
▲完工實拍圖 ©源于·云蘭整裝
衛生間比較方正,槍灰色淋浴房邊框、白色馬桶,墻地一體磚、白色吊頂,白色花灑、龍頭,體現主人高檔次的生活品味和優雅的審美觀。
▲完工實拍圖 ©源于·云蘭整裝
進門玄關處我們做了鞋子收納柜,柜體裝有化妝鏡,滿足上班出行美妝需求。旁邊餐邊柜半開放設計很方便放置進出門的鑰匙包包等物品。
▲完工實拍圖 ©源于·云蘭整裝
北陽臺是晾曬衣物的場所,一側洗衣機和水池,上方為儲物柜,顏色以米白色為主,儲物柜米色門板和門套相配,大玻璃窗讓陽光柔和的照進來,很舒適、很愜意。
▲完工實拍圖 ©源于·云蘭整裝
這套翻新裝修房,我們不僅滿足了業主的審美喜好及所有功能需求,而且通過設計改造提升家居生活的溫度和舒適度。如果你也有房子裝修,請聯系我們,我們會用設計技巧和裝修經驗將花費控制在預算之內,實現您的家居夢想。
靠譜裝新家熱線
4000-87-3339
掃一掃,有驚喜


您家舒適美麗家 要花多少錢?
3套設計方案免費一鍵獲取您家裝修報價
Copyright ? 2026 YUNLAN-DECORATION. ALL RIGHTS RESERVER