▲完工實拍圖 ©源于·云蘭整裝
戶型解析:
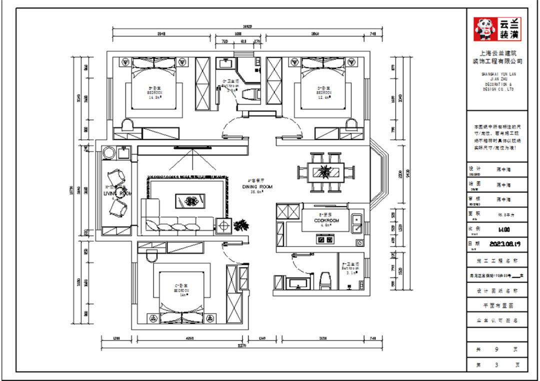
本套房子是位于高層的三室二廳二衛,我們根據業主要求將每個空間都做了優化,合理安排了空間布局,將儲物空間做到分類有序、容量有量。
1、做雙眼皮加線性燈組合吊頂,簡約時尚;
2、定制極窄邊框玻璃餐邊柜,調和用餐氛圍;
3、走道儲物柜加大設計,既實用,又有裝飾性......
裝修主材:
| 客餐廳地面 | 馬可波羅玻磚 |
| 墻面乳膠漆 | 多樂士環保漆 |
| 廚房配置 | 老板電器 |
| 衛生間配置 | T&T潔具 |
圖 賞
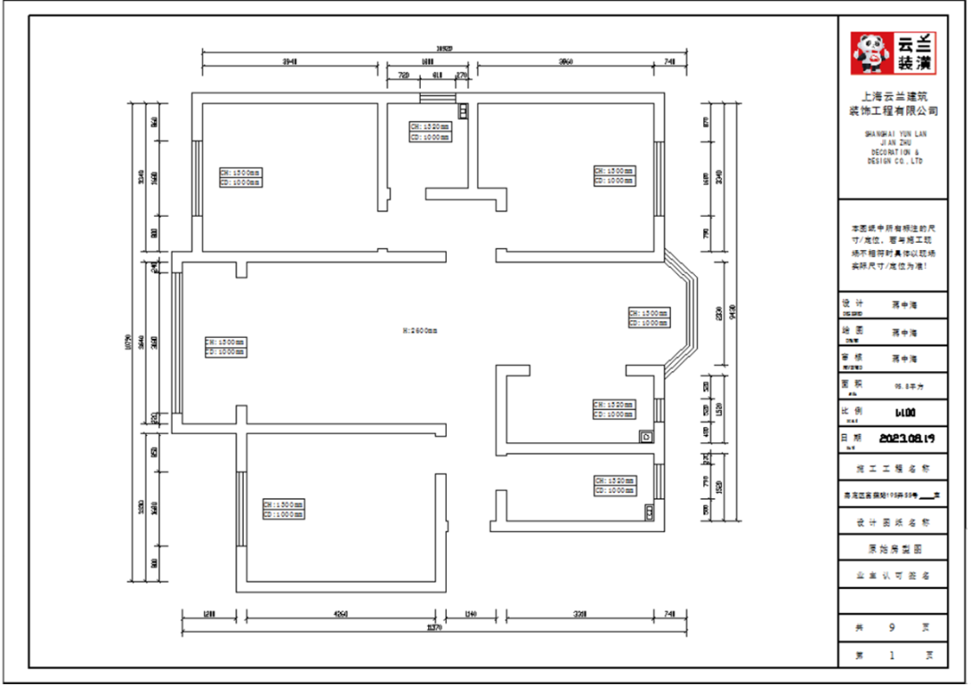
▲原始戶型圖
▲平面布置圖
▲完工實拍圖 ©源于·云蘭整裝
客廳開間很大,電視墻做了巖板與木飾格柵,淺的巖板和原木色木飾面相互配合,明暗有神,深灰色皮質沙發立刻檔次提高很多,客廳空間也很寬闊。吊頂造型上采用雙眼皮加線性燈組合吊頂。地面采用淺灰色地磚,造型和色調上給人以簡潔、時尚之感。
▲完工實拍圖 ©源于·云蘭整裝
超大的巖板背景墻,頂上二個射燈點綴的恰到好處,加上木質格柵的搭配給整個背景墻增加一番優雅,電視邊柜采用透明黑色玻璃高端又大氣,電視柜也采用了懸空做法,讓空間不但時尚而且清爽。
▲完工實拍圖 ©源于·云蘭整裝
沙發背景刷米灰色涂料,頂面線型燈與射燈的搭配給沙發背景額外增加一絲風采,沙發用深色,深淺搭配的錯落有致,既溫馨又簡潔。
▲完工實拍圖 ©源于·云蘭整裝
餐廳空間比較方正寬敞,又做了一個大飄窗矮柜,既實用、又有裝飾功能,冰箱為獨立位也給餐廳增加了一絲溫馨感,極窄邊框玻璃門和白色木門板相呼應,巖板餐桌把用餐氛圍調和的很溫暖,淺灰色地磚很干凈,色彩和造型上都簡潔大氣。
▲完工實拍圖 ©源于·云蘭整裝
該套房子廚房空間很大,U字型廚房,操作空間非常舒適,冰箱也有單獨位,不放于廚房,給廚房增加了空間,各種廚房電器全部配齊,滿足主人制作各種美食的需求。
▲完工實拍圖 ©源于·云蘭整裝
主臥地面采用的是實木復合地板淺灰色,與床及床頭柜搭配為一體,更衣柜采用一門到頂做法,預留暗裝拉手造型以簡潔平板為主,方便打理,頂面為雙眼皮吊頂,內嵌中央空調,在每個角度我們臥室都是一個整潔、簡約、也不失優雅的一個空間。
▲完工實拍圖 ©源于·云蘭整裝
▲完工實拍圖 ©源于·云蘭整裝
次臥為女兒房間,采用一個床頭柜做法,靠窗做轉角書桌,空間利用和功能性俱全,墻面刷奶咖色墻面乳膠漆,頂面白色乳膠漆,既簡單又實用。
▲完工實拍圖 ©源于·云蘭整裝
▲完工實拍圖 ©源于·云蘭整裝
客衛空間很大,智能馬桶,淋浴房區域采用大理石切槽做法、白色吊頂,鈦合金移門,體現主人高檔次的生活品味和優雅的審美觀。
▲完工實拍圖 ©源于·云蘭整裝
▲完工實拍圖 ©源于·云蘭整裝
本套房子的走道儲物柜設計也是一大亮點,既實用,又有裝飾性,雙門儲物柜,留一門做玻璃門板,展示主人收藏的藝術品,門板采用平板一門到頂,和臥室門顏色相統一,給人感覺不僅雅致而且有韻味。
▲完工實拍圖 ©源于·云蘭整裝
陽臺是晾曬衣物的場所,一側洗衣機和水池,一側為喝茶區,顏色以原木為主,彰顯主人生活品味,超大玻璃窗讓陽光柔和的照進來,很舒適、很愜意。
▲完工實拍圖 ©源于·云蘭整裝
這套翻新房裝修項目,我們不僅滿足了業主的審美喜好及所有功能需求,而且通過設計改造提升家居生活的溫度和舒適度。如果你也有房子裝修,請聯系我們,我們會用設計技巧和裝修經驗將花費控制在預算之內,實現您的家居夢想。
云蘭整裝專做上海家裝21年,現回頭客及轉介紹業務已占業務總量的4成以上。上海家裝回頭客第一,上海家裝客戶滿意度第一,雙第一口碑品牌。一直堅持免費上門量房,免費360°效果設計,免費清單報價,固定施工隊,工程不轉包不發包!好而不貴,找云蘭整裝,真靠譜!
靠譜裝新家熱線
4000-87-3339
掃一掃,有驚喜


您家舒適美麗家 要花多少錢?
3套設計方案免費一鍵獲取您家裝修報價
Copyright ? 2026 YUNLAN-DECORATION. ALL RIGHTS RESERVER