▲完工實拍圖 ©源于·云蘭整裝
戶型解析:
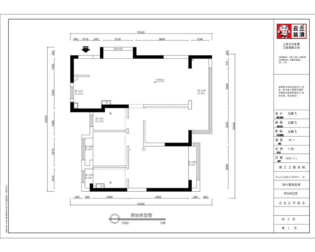
本套房子是位于4樓的三室兩廳兩衛,小區樓間距進深較寬,視野開闊。
1、拆墻改造格局,做出大面積書房空間;
2、廚房設計三聯動移門,開間變大,將陽光引入餐廳;
3、公共衛生間做干濕分離,讓防潮、方便都具優勢......
裝修主材:
| 客餐廳臥室地面 | 圣象地板 |
| 墻面乳膠漆 | 多樂士 |
| 廚房電器 | 方太 |
| 衛生間配置 | 金雅陶瓷磚、法恩莎潔具 |
業主希望為自己養老打造一個溫馨的居室。正準備結婚的女兒,會偶爾到家里小住,因此次臥給女兒作預留。同時,業主熱愛閱讀和辦公,需要一個獨立且舒適的書房空間。
圖 賞
▲原始戶型圖
▲平面布置圖
▲完工實拍圖 ©源于·云蘭整裝
在風格上我們采用具有舒適與自然之美北歐原木風,原木色地板、雙眼皮圍邊吊頂、深灰色皮質沙發,用簡潔的設計為業主打造出了一個既美觀又實用的居家環境。
▲完工實拍圖 ©源于·云蘭整裝
電視墻設計巧妙地結合了展示立柜與懸空電視柜,既增加了實用功能,又提升了整體的美觀度。柜子色系與沙發的搭配具有微妙的顏色變化,讓客廳色階具有層次感。
▲完工實拍圖 ©源于·云蘭整裝
▲完工實拍圖 ©源于·云蘭整裝
餐廳合理利用,餐桌兩邊做整墻收納柜,增加儲物能力的同時還可以放置家用電器、使空間整潔的同時也方便日常生活使用。
▲完工實拍圖 ©源于·云蘭整裝
▲完工實拍圖 ©源于·云蘭整裝
廚房依據戶型采用U型設計,并定制三面櫥柜,高光pet材質門板,石英石臺面,外觀、品質、實用都兼具。
▲完工實拍圖 ©源于·云蘭整裝
主臥設計中,我們以奶黃色為主色調,搭配簡約而時尚的墻板背景。還特意為客戶挑選了奶咖窗簾與白色沙簾,不僅美觀大方,還能有效調節光線,為客戶提供更加舒適的居住體驗。
▲完工實拍圖 ©源于·云蘭整裝
次臥設計中,我們創新地采用了衣柜與書桌的兩位一體設計,巧妙地利用了空間,使僅8平方米的次臥變得寬敞而不擁擠。
▲完工實拍圖 ©源于·云蘭整裝
▲完工實拍圖 ©源于·云蘭整裝
在公共衛生間設計中,我們將臺盆柜外置,避免了早晨高峰期的空間擁擠。還選用了智能鏡柜,方便客戶出行梳妝的同時增加收納空間,巧妙地是下方柜體的鏤空設計,使得收納更加自如。
▲完工實拍圖 ©源于·云蘭整裝
衛生間配置方面我們選用了黑色淋浴房邊框和白色馬桶,這種經典的黑白搭配使得空間顯得簡約大方。墻地采用一體柔光磚,白色吊頂和長虹玻璃鈦合金移門,方便清潔維護,還能營造出柔和舒適的氛圍。
▲完工實拍圖 ©源于·云蘭整裝
為了滿足業主居家辦公、閱讀的需求,我們特地通過拆墻改造格局的方式,為業主書房做出大面積書房空間。并在空間內布局了整面墻書柜、創意設計書桌。書柜柜體分上中下三層設計,可以非常明晰的做空間規劃和物品、書籍、展示品分類。
▲完工實拍圖 ©源于·云蘭整裝
▲完工實拍圖 ©源于·云蘭整裝
入戶玄關是一個緩存過度地段,我們設置了門口的換鞋柜,方便換鞋的同時使空間更加完善,中間和下方漏空的鞋柜,隨手可以放置包包,鑰匙等,既實用,又個性。
▲完工實拍圖 ©源于·云蘭整裝
在陽臺的設計中,我們充分考慮了晾曬衣物、洗衣等日常生活需求,陽臺一側放置了洗衣機和水池,方便客戶進行衣物清洗和整理。上方我們設計了儲物柜,以羊絨灰為主色調,與門套相得益彰,既美觀又實用。這種設計不僅增加了陽臺的儲物空間,也使得整個空間更加和諧統一。
這個翻新裝修項目,我們不僅滿足了業主的審美喜好及所有功能需求,而且通過設計改造提升家居生活的溫度和舒適度。如果你也有房子裝修,請聯系我們,我們會用設計技巧和裝修經驗將花費控制在預算之內,實現您的家居夢想。
云蘭整裝專做上海家裝21年,現回頭客及轉介紹業務已占業務總量的4成以上。上海家裝回頭客第一,上海家裝客戶滿意度第一,雙第一口碑品牌。一直堅持免費上門量房,免費360°效果設計,免費清單報價,固定施工隊,工程不轉包不發包!好而不貴,找云蘭整裝,真靠譜!
靠譜裝新家熱線
4000-87-3339
掃一掃,有驚喜


您家舒適美麗家 要花多少錢?
3套設計方案免費一鍵獲取您家裝修報價
Copyright ? 2026 YUNLAN-DECORATION. ALL RIGHTS RESERVER