▲完工實拍圖 ©源于·云蘭整裝
| 裝修主材 | |
|
客餐廳廚房地面 |
諾貝爾玻化磚 |
|
臥室地面 |
菲林格爾地板 |
| 廚房電器 | 方太 |
|
衛生間配置 |
法恩莎潔具 |
該居室是退休夫妻倆居住的,所以該套房子裝修體現簡潔、時尚,體現現代風格的舒適、自然之美,線條簡約,造型柔和不呆板,色彩淡雅干凈。
業主家里有上千件的收藏,有書籍和汽車模型,我們設計的時候考慮拆除所有的非承重墻體,然后用柜體做為隔斷,這樣盡可能的放大儲藏。衛生間這邊考慮做干濕分離,把干區臺盆與濕區獨立分開,從而讓衛生間利用率更高。把北面小房間做成了獨立的書房,兩邊柜體用于書籍的收納,整體風格簡約大氣,舒適宜居。
圖 賞
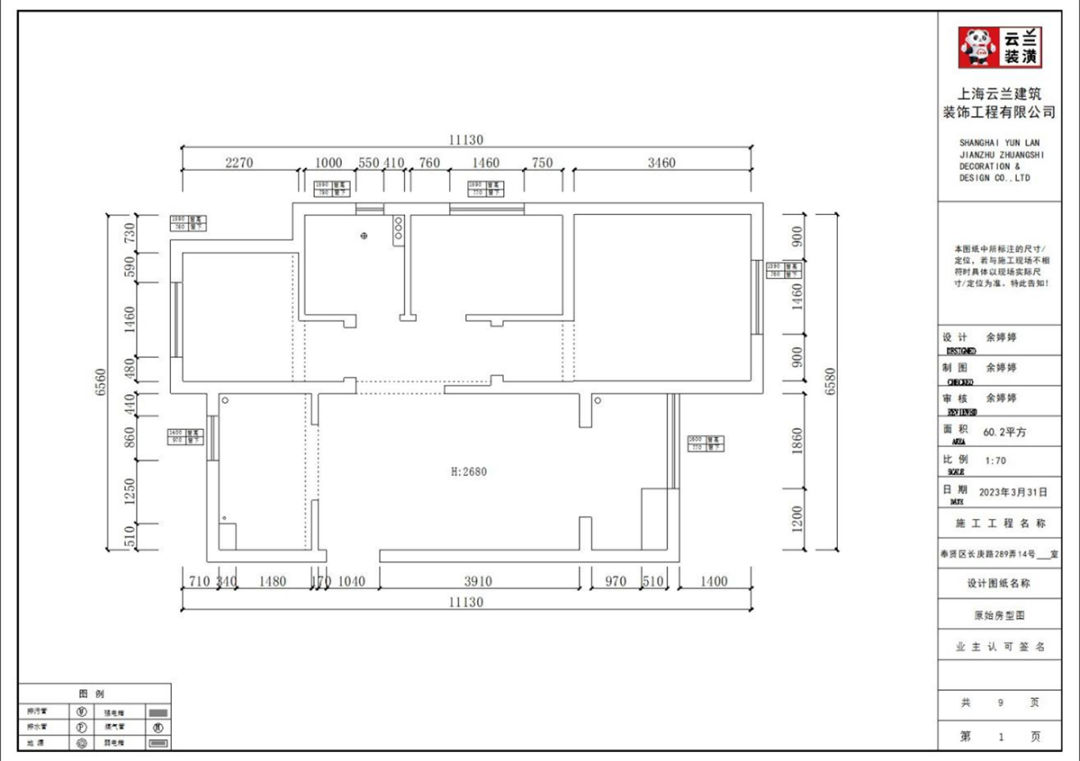
▲原始戶型圖
▲平面布置圖
▲完工實拍圖 ©源于·云蘭整裝
客廳面積不大,但經過設計師的手筆,讓空間緊湊不擁擠,電視墻做純色乳膠漆,和沙發背景淺灰色相互配合,明暗有神,深灰色皮質沙發立刻檔次提高很多。吊頂造型上采用簡單的石膏線,讓造型柔和很多。
▲完工實拍圖 ©源于·云蘭整裝
窗簾顏色和沙發相呼應,和白色陽臺門套相配襯,電視柜兩邊的裝飾物,讓空間活躍很多,通長電視柜也很大氣,沙發背景的掛畫是主人特別收藏的,非常特別。
▲完工實拍圖 ©源于·云蘭整裝
▲完工實拍圖 ©源于·云蘭整裝
餐廳空間把非承重墻體打掉做成了餐邊展示柜,餐桌椅是業主原來的老家具保留的,整體氛圍簡單溫馨。
▲完工實拍圖 ©源于·云蘭整裝
▲完工實拍圖 ©源于·云蘭整裝
該套房子廚房空間很大,L型三面櫥柜,另外冰箱邊上也有操作臺,顏色簡潔明快,材質要干凈和好打理,白色的吊頂和米色的上櫥柜、深色的下櫥柜相呼應,石英石臺面干凈、好打理,各種廚房電器全部配齊,滿足主人制作各種美食的需求。
▲完工實拍圖 ©源于·云蘭整裝
▲完工實拍圖 ©源于·云蘭整裝
主臥米白色床頭背景,和米色床、床頭柜,搭配藝術掛畫,灰色窗簾+白色沙簾,造型以簡潔平板為主,方便打理,體現了簡約風格的簡潔、隨意,不拘一格。
▲完工實拍圖 ©源于·云蘭整裝
吊頂、衣柜和套裝門,顏色深淺有序,門邊上一個盆景讓整個空間綠意盎然,舒適、環保,給人感覺不僅雅致而且有韻味。
▲完工實拍圖 ©源于·云蘭整裝
次臥是男主人居住,需要放置大量的CD,利用與主臥之間的非承重墻體做出儲藏空間,讓6個平方的次臥空間很寬敞,感覺不到擁擠,顏色深淺有序,很溫馨,舒適、給人感覺不僅雅致而且有韻味。
▲完工實拍圖 ©源于·云蘭整裝
衛生間不大,采用干濕分離設計,白色馬桶,墻地一體磚、白色吊頂,長虹玻璃鈦合金開門,體現主人高檔次的生活品味和優雅的審美觀。
▲完工實拍圖 ©源于·云蘭整裝
▲完工實拍圖 ©源于·云蘭整裝
進戶鞋柜與電視柜整體做成一體式的柜體,設計采用下方和中間漏空,下方放鞋,中間放工藝品,讓鞋柜功能齊全,顏色和防盜門、進戶門套能夠協調。
▲完工實拍圖 ©源于·云蘭整裝
陽臺與客廳打通增大空間的同時也做了大量的儲物,洗衣機烘干機上下疊放,邊上做了一組家政柜放置吸塵器等家政用品,小小的空間有大大的利用。
這個新房裝修項目,我們不僅滿足了業主的審美喜好及所有功能需求,而且通過設計改造提升家居生活的溫度和舒適度。如果你也有房子裝修,請聯系我們,我們會用設計技巧和裝修經驗將花費控制在預算之內,實現您的家居夢想。
云蘭整裝專做上海家裝21年,現回頭客及轉介紹業務已占業務總量的4成以上。上海家裝回頭客第一,上海家裝客戶滿意度第一,雙第一口碑品牌。一直堅持免費上門量房,免費360°效果設計,免費清單報價,固定施工隊,工程不轉包不發包!好而不貴,找云蘭整裝,真靠譜!
靠譜裝新家熱線
4000-87-3339
掃一掃,有驚喜


您家舒適美麗家 要花多少錢?
3套設計方案免費一鍵獲取您家裝修報價
Copyright ? 2026 YUNLAN-DECORATION. ALL RIGHTS RESERVER