▲完工實拍圖 ©源于·云蘭整裝
| 裝修主材 | |
|
客餐廳臥室地面 |
圣象實木 |
|
廚房地面 |
諾貝爾 |
| 乳膠漆 | 多樂士 |
|
衛生間地面 |
諾貝爾 |
這套房子業主夫婦均為上海上班族,對于忙碌的都市生活,他們渴望有一個能讓他們放松身心的地方。因此,我們為他們量身打造了這個57平米二室一廳的居室裝修方案。通過運用開放空間、多功能區、通頂收納等設計,創造一個既寧靜又富有生活氣息的生活空間。
圖 賞
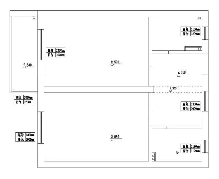
▲原始戶型圖
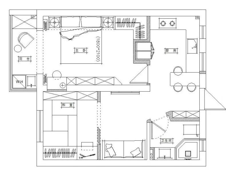
▲平面布置圖
▲完工實拍圖 ©源于·云蘭整裝
客廳區域我們采用了米灰色調,先打造出寧靜、雅致的氛圍。同時,我們精選的現代感軟裝與整體空間色調完美融合,進一步提升了空間的和諧度。
值得一提的是,我們為客廳特別設計了三聯動移門。這種設計不僅增加了空間的通透感,更能讓光線充分灑落,使客廳更加明亮。
▲完工實拍圖 ©源于·云蘭整裝
為了更好的利用空間,我們將廚房原本的封閉空間,改成為開放式廚房。并借空出區域設置了餐臺,夫妻二人配合烹飪上菜非常方便。如果將此區域用于早餐、下午茶、睡前甜點等快食空間,極具實用性和時尚感。
▲完工實拍圖 ©源于·云蘭整裝
▲完工實拍圖 ©源于·云蘭整裝
廚房采用U字型廚柜與島臺相結合,這種獨特的設計不僅符合廚房的操作流程,從取材、清洗、切配到炒煮、擺盤,都得以流暢進行,更使得廚房的空間得到了最大化的利用。
▲完工實拍圖 ©源于·云蘭整裝
廚柜設計充分利用了轉角空間,使得各類廚具、餐具和食材都能夠有序擺放,方便取用。而島臺不僅為廚房增加了額外的操作臺面,還內置了儲物柜或抽屜,進一步增加了儲物空間。
▲完工實拍圖 ©源于·云蘭整裝
臥室是供業主下班休憩的重要場所,所以我們根據業主個人喜好和需求進行設計營造出一個溫馨、舒適的氛圍。并為臥室精心挑選了暖色調的墻壁、家具以及燈光,暖色調的燈光能夠輕松消除一天工作的疲憊。
▲完工實拍圖 ©源于·云蘭整裝
根據業主夫婦衣物較多的情況,我們特別為業主定制了通頂組合柜,不僅能提供充足的收納空間,還能分類擺放讓臥室空間更加有序。
▲完工實拍圖 ©源于·云蘭整裝
兒童房也進行了全屋定制,衣柜區域正對進門區做一排上柜,里面可以放小朋友的玩具和書本。床頭背景墻米白色結合淺灰色竹木纖維墻板,既讓奶灰色柜門和墻面、頂面渾然一體,同時呼應了灰色床、床頭柜。
▲完工實拍圖 ©源于·云蘭整裝
衛生間作為家中的重要功能區,其設計需要充分考慮通風與實用性的平衡。我們將鉆石形淋浴房靠窗擺放,利用窗戶的自然通風,有效排除濕氣。
▲完工實拍圖 ©源于·云蘭整裝
考慮到衛生間的空間布局和功能性需求,我們在淋浴房的兩側分別放置了馬桶和臺盆。這樣的布局不僅充分利用了空間,還確保了日常使用的便利性。特別是在早晨或晚上,這種布局可以減少動線的交叉,讓使用過程更加流暢。
▲完工實拍圖 ©源于·云蘭整裝
進門玄關處,定制了一個超大的收納鞋柜,柜體分上下兩個部分,下面柜體可容納大量鞋子及物品,上方玻璃柜體可放置收藏品,中間鏤空可放置挎包、鑰匙等,底部鏤空處與常規鞋等高方便換室內拖鞋,非常實用。
▲完工實拍圖 ©源于·云蘭整裝
為了給業主提供一個既娛樂又休閑的空間,我們特別設計了一處多功能區域。這個區域的核心是一整排靠墻通頂的衣柜,為業主的衣物提供了一個寬敞且私密的儲物空間。在多功能區域中,我們還融入了榻榻米床的設計,在榻榻米中央區域,我們巧妙地設計了升降桌,它不僅可以作為娛樂的棋牌桌或游戲桌使用,還可以作為用餐的餐桌。這種設計不僅個性十足,而且充分展現了空間的靈活性和多變性。
▲完工實拍圖 ©源于·云蘭整裝
陽臺處我們采用了多功能設計,讓原本單調的空間有了收納、洗衣、晾曬、梳洗、觀景、閱讀等多種功能。右手邊原木色定制柜體做了當下很流行的洗衣柜組合,洗衣機旁邊做了小洗手池,可以方便清洗內衣等小件衣物。
這套年輕夫婦的翻新裝修房,我們不僅滿足了業主的審美喜好及所有功能需求,而且在細節處以求提升著生活的溫度和舒適度,助力夫婦二人自然真實的幸福。如果你也有房子裝修,預算又不是很充裕,一定要聯系我們,我們會用設計技巧和裝修經驗將花費控制在預算之內,實現您的家居夢想。
云蘭整裝專做上海家裝21年,現回頭客及轉介紹業務已占業務總量的4成以上。上海家裝回頭客第一,上海家裝客戶滿意度第一,雙第一口碑品牌。一直堅持免費上門量房,免費360°效果設計,免費清單報價,固定施工隊,工程不轉包不發包!建面66㎡ 11萬一口價真全包!好裝潢,找云蘭,靠譜!
靠譜裝新家熱線
4000-87-3339
掃一掃,有驚喜


您家舒適美麗家 要花多少錢?
3套設計方案免費一鍵獲取您家裝修報價
Copyright ? 2026 YUNLAN-DECORATION. ALL RIGHTS RESERVER