▲完工實拍圖 ©源于·云蘭裝潢
裝修預算:13.8萬 裝修總價:13.8萬
| 裝修主材 | |
|
客餐廳地面 |
諾貝爾玻化磚 |
|
廚房地墻面 |
諾貝爾玻化磚 |
| 乳膠漆 | 多樂士 |
|
衛生間地面 |
諾貝爾防滑磚 |
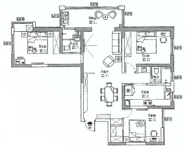
這套房是一個三口之家,主人熱情好客,家中常常有客人造訪,偶爾還會有遠方的父母前來探望,因此,增加儲物功能很有必要。為了裝修的大氣、整潔,選擇了現代輕奢風的裝修風格。這套房子為三室二廳二衛,主臥由主人居住,次臥則是由正在上小學的兒子居住,另外一間客房則隨時歡迎父母和客人的到來。
圖 賞
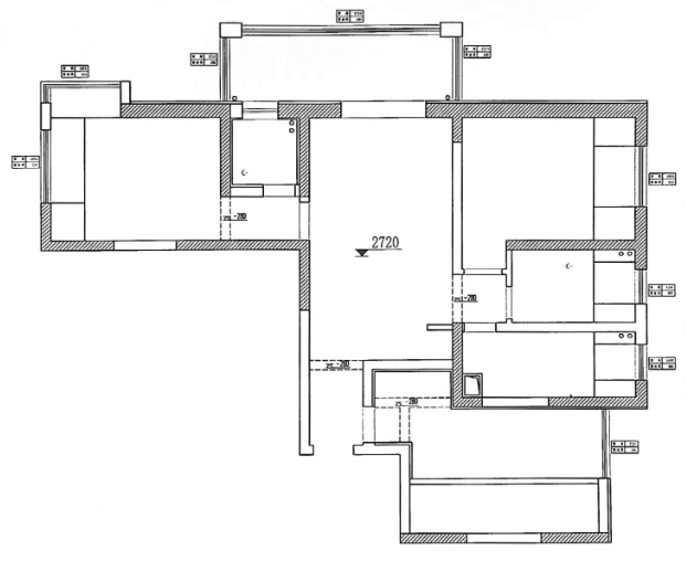
▲原始戶型圖
▲平面布置圖
▲完工實拍圖 ©源于·云蘭裝潢
這個客廳擁有寬敞的空間,電視墻整體使用石紋竹木纖維板,灰白色調的石紋和極窄線條,明暗有神,給人一種高貴而神秘的感覺。藏青色皮質沙發擺放在其中,瞬間提升了整個客廳的檔次,而一組按摩沙發的加入,更為客廳增添了一份舒適與愜意。
▲完工實拍圖 ©源于·云蘭裝潢
吊頂造型上,采用了雙眼皮吊頂的設計,既美觀又實用。地面則選用淺灰色地磚,與整個空間的色調相得益彰,細節處給人一種簡潔、大氣、時尚的感覺。
▲完工實拍圖 ©源于·云蘭裝潢
這個餐廳空間設計得十分舒適,整體布局方正寬敞,一進門就能感受到溫馨的氛圍。進門右手邊擺放裝飾畫為空間增添了一份靈動與生氣。左墻設計了一排矮柜和酒柜,不僅實用,還具有很好的裝飾效果。原木色的框架與極窄邊框的玻璃門以及白色木門板相互呼應,呈現出一種簡潔大氣的美感。

▲完工實拍圖 ©源于·云蘭裝潢
巖板餐桌為用餐區域注入了溫暖的氛圍,淺灰色地磚潔凈明亮,這樣的設計充滿了人情味,讓用餐變得更加享受。同時整個餐廳空間充滿了舒適、溫馨與和諧的氣息,著重體現主人對生活的熱愛與追求。
▲完工實拍圖 ©源于·云蘭裝潢
主臥的設計充滿了柔和、溫暖的氣息。奶白色的床頭背景與米色皮質靠背相得益彰,非常和諧。衣柜門板也選擇了白色,與墻面自然融合,宛如一體。而上方通體的空調風口和過道線性燈的設計,增添了空間的層次感,避免了單調。
▲完工實拍圖 ©源于·云蘭裝潢
兒童房1.8米灰色皮包床保證小朋友睡覺時有充足翻身空間,睡的安全。衣柜區域正對進門區做一排玻璃門,里面可以放小朋友的玩具和書本。床頭背景墻米白色結合淺灰色竹木纖維墻板,既讓奶白色柜門和墻面、頂面渾然一體,同時呼應了灰色床、床頭柜。
▲完工實拍圖 ©源于·云蘭裝潢
客房不僅考慮到了實用性和舒適性,還充分融入了家庭成員的生活習慣和感受。增加收納的同時,力求給人一種溫暖與舒適的感覺。而衣柜門板采用條紋玻璃,則讓整個空間更加寬敞明亮。
▲完工實拍圖 ©源于·云蘭裝潢
這個廚房空間十分寬敞,采用了流行的L型一面櫥柜設計,使得儲物空間得到了極大的提升。整個廚房的顏色搭配簡潔明快,底部櫥柜材質選擇干凈且易于打理的材質,讓整個廚房看起來更加整潔有序。白色的吊頂與上面淺色的櫥柜相呼應,營造出一種清新宜人的氛圍。
▲完工實拍圖 ©源于·云蘭裝潢
▲完工實拍圖 ©源于·云蘭裝潢
主衛空間寬敞,只放置了一個馬桶和一個洗手臺,沒有單獨的淋浴區域,這樣可以讓空間看起來更加寬敞。灰色的窗戶搭配槍灰色的毛巾架和龍頭,讓整個空間看起來諧調統一。
▲完工實拍圖 ©源于·云蘭裝潢
這個客衛通過精心設計和布陳充滿了高檔次的美感。1.2米長的洗手臺、智能馬桶,墻地一體磚以及白色吊頂的搭配,無一不體現出主人優雅、獨特的生活品味。
▲完工實拍圖 ©源于·云蘭裝潢
▲完工實拍圖 ©源于·云蘭裝潢
入戶玄關柜從外邊的圓弧形角矮柜到里邊的頂天立地四扇高柜,中間的玻璃門,都體現了主人生意人的處事圓潤、做人挺直腰桿心胸坦蕩的品格。屏風采用金色弧形設計,與矮柜的圓形角相呼應,給人一種不僅雅致而且有韻味的感覺。
▲完工實拍圖 ©源于·云蘭裝潢
▲完工實拍圖 ©源于·云蘭裝潢
陽臺是家居生活中不可或缺的一部分,它不僅是晾曬衣物的場所,更是一個可以享受陽光、感受自然的空間。在這里,一側擺放著洗衣機和水池,方便洗衣和清洗,另一側則是一張按摩椅,可以讓主人在忙碌一天后放松身心。
整個陽臺的顏色以灰色為主,給人一種沉穩、舒適的感覺。超大落地玻璃窗讓陽光柔和地照進來,讓人感到溫暖而舒適。在這里,業主一家可以沐浴陽光、感受自然,享受家居生活的寧靜與愜意。
云蘭裝潢專做家裝20年,年輕家新標桿,6感年輕整裝,讓家常住青春里!云蘭裝潢一直致力于為廣大客戶提供高品質的服務,將幸福帶進千家萬戶,現在回頭客及轉介紹業務已占業務總量的4成以上!云蘭裝潢一直堅持免費上門量房,免費360°效果設計,免費清單報價,固定施工隊,工程不轉包不發包,靠譜年輕整裝就選云蘭裝潢!
靠譜裝新家熱線
4000-87-3339
掃一掃,有驚喜


您家舒適美麗家 要花多少錢?
3套設計方案免費一鍵獲取您家裝修報價
Copyright ? 2026 YUNLAN-DECORATION. ALL RIGHTS RESERVER