▲完工實拍圖 ©源于·云蘭裝潢
| 裝修主材 | |
|
客餐廳廚臥地面 |
鵬諾玻化磚 |
|
廚房墻面 |
金雅陶玻化磚 |
| 乳膠漆 | 多樂士金裝 |
|
衛生間地墻面 |
金雅陶防滑磚玻化磚 |
這是一個三世同堂鄉村度假別墅,業主已經是第四次找我們裝修。平時的房子是空置的,只有節假日的時候一家人會小住一段時間,所以該套房的設計我們在硬裝上采用簡單的造型來調整空間的比例。軟裝上盡量少,且不用好看不實用的家具。戶型結構還是挺好,功能分區明顯。唯一缺點就是原始戶型客廳中間有根梁,這個梁物業是允許拆的。大多數人的觀念,客廳有根梁是不能接受的,所以小區其他住戶大都選擇把這根梁拆除。但是我們做設計不能“人云亦云”,我問業主:這根梁我覺得挺有特點可以不拆,客廳有梁暴露出來能不能接受?業主說:能,也覺得挺有意思,不拆還能省點預算。商量下來,那么整個的設計都要圍繞這根梁去設計了。
圖 賞
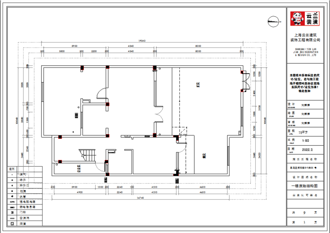
▲一樓原始戶型圖
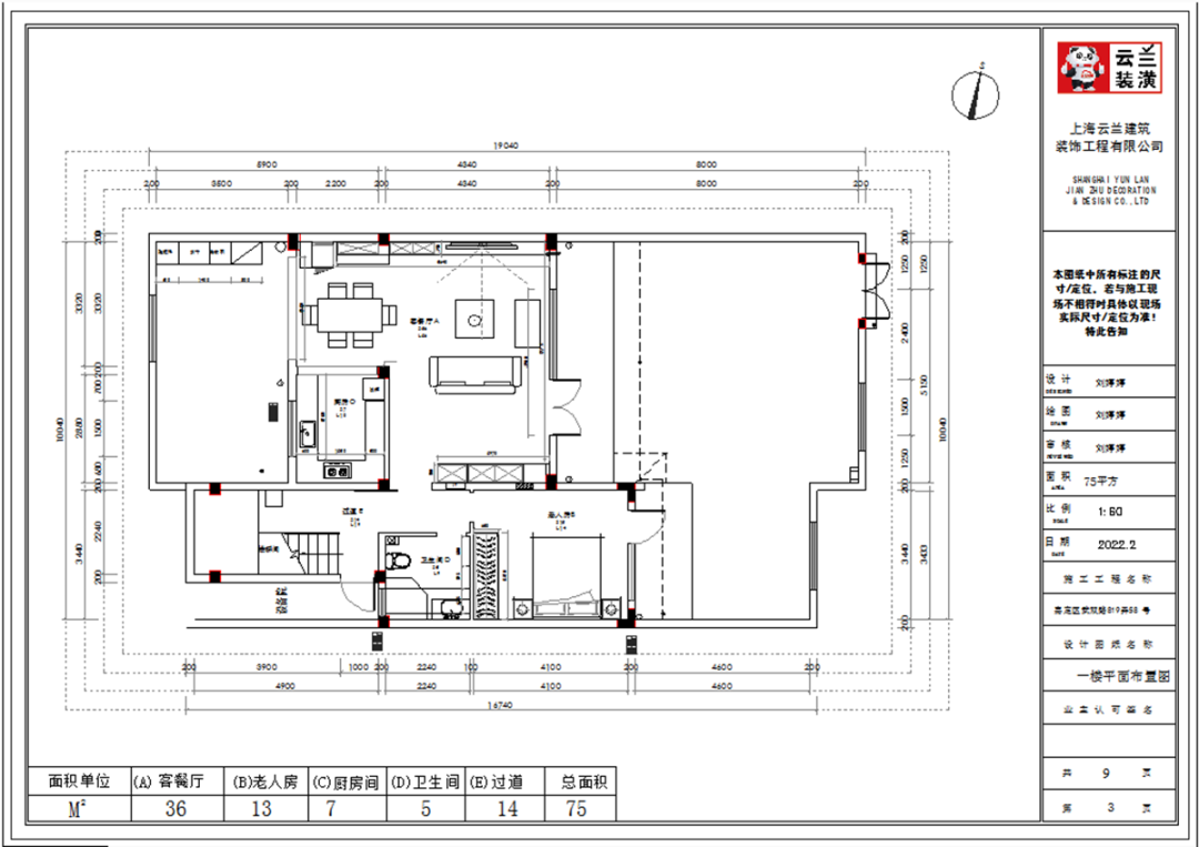
▲一樓平面布置圖
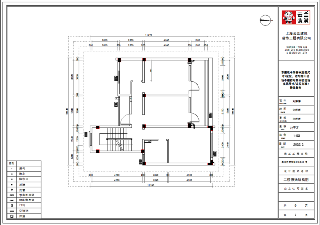
▲二樓原始戶型圖
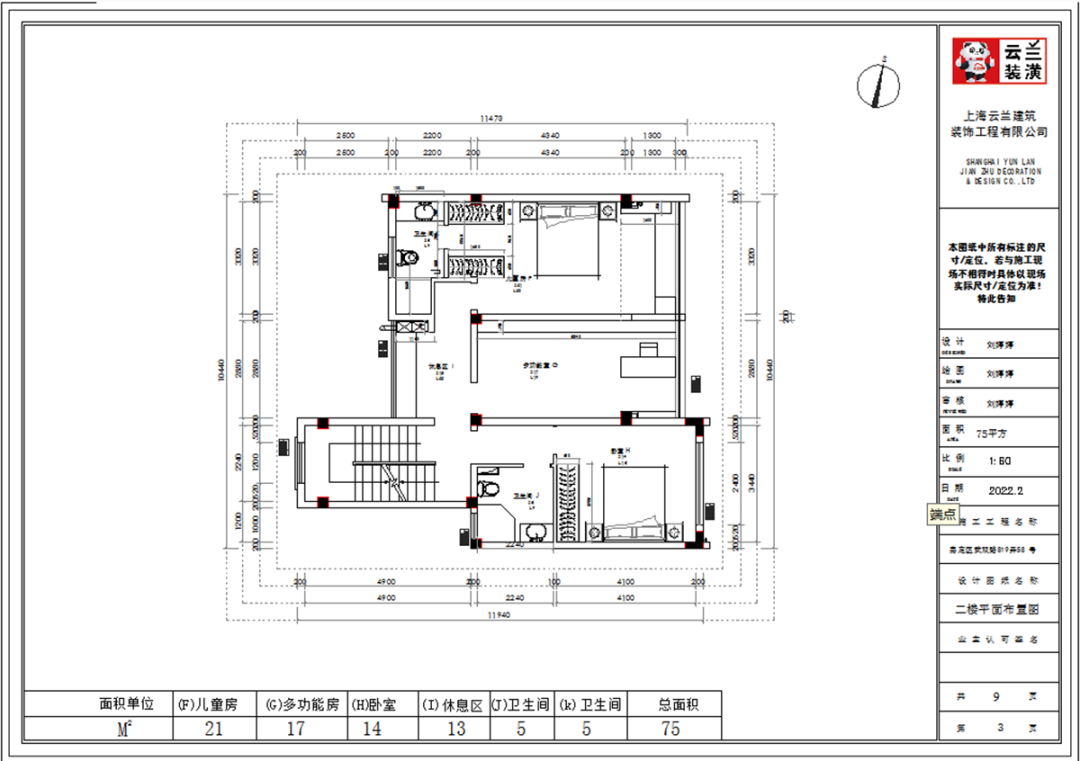
▲二樓平面布置圖
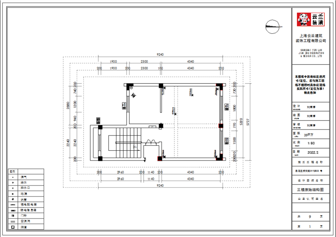
▲三樓原始戶型圖
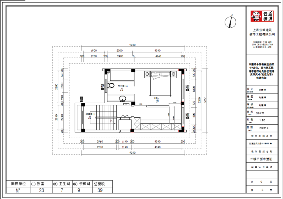
▲三樓平面布置圖
▲完工實拍圖 ©源于·云蘭裝潢
空間的高質感,往往將復雜與精細包藏于內,最終以最簡單直觀的形式外化呈現。而環境對人有重塑、重構影響之效,該客廳設計則是將這種正向效果高度地提煉,傳達平衡與和諧的感性共鳴。
▲完工實拍圖 ©源于·云蘭裝潢
電視背景與餐邊柜融為一體,縱向的延伸增大客廳的比例感。巖板電視背景也很大氣,讓空間不但時尚而且清爽。
▲完工實拍圖 ©源于·云蘭裝潢
不行于色,以簡至勝。整個空間色彩搭配切合時宜,在不露聲色間演繹簡約克制的美學范本,同時注重人與環境的情感提升體驗,從細節處的精微巧思捕捉層層的感知關系,將居住引向契合心靈的舒適狀態。
▲完工實拍圖 ©源于·云蘭裝潢
餐廳空間比較方正寬敞,又有一個大落地窗,靠墻做一排裝飾柜,既實用、又有裝飾功能,膚感灰+木色框架,極窄邊框玻璃門板相呼應,巖板餐桌把用餐氛圍調和的很溫暖,淺灰色地磚很干凈,色彩和造型上都簡潔大氣。
▲完工實拍圖 ©源于·云蘭裝潢
書房書架上,智慧的寶藏閃耀光芒,擺設的文房四寶承載著歷史的印記;在知識的海洋中徜徉自由地思考,文字與思緒穿梭,鋪就了一條詩意的道路。
▲完工實拍圖 ©源于·云蘭裝潢
▲完工實拍圖 ©源于·云蘭裝潢
沉穩的深褐木色地板,外搭灰色與藍色之間碰撞著肌理和色塊的創意火花,矩形陣列的組合架構以時尚而靈活的樣式契合使用者的生活體驗。工藝的美學和實用價值消解了物體與空間的界限,在一方天地里創造出無限的潛能價值。

▲完工實拍圖 ©源于·云蘭裝潢
沉穩的裝修彰顯主人品質,色彩搭配既有現代感,又充滿了藝術氣息。既具有高雅的藝術感,又不失實用性。每一個細節都經過精心設計,將物體與空間的界限完美消解。
▲完工實拍圖 ©源于·云蘭裝潢
精心挑選的家具和細節裝飾,在實用性的基礎上,更注重與整體設計的和諧統一。
▲完工實拍圖 ©源于·云蘭裝潢
巧妙地運用了各種元素,臥室進門設計了收納柜,充分考慮了居住的舒適性和實用性。每一個細節的精心設計,能讓人在其中感受到一種寧靜與和諧,仿佛置身于一個充滿靈感與夢幻的世界之中。
▲完工實拍圖 ©源于·云蘭裝潢
廚房以精致、豪華、高雅,注重品質和個性化。采用黑色和淺色調,營造出高貴、典雅的氛圍。櫥柜、臺面和餐具等主要元素均采用精致的線條和材質,突顯高雅氣息。
▲完工實拍圖 ©源于·云蘭裝潢
▲完工實拍圖 ©源于·云蘭裝潢
主衛空間也很大,只放一個馬桶,一個洗手臺,做一排儲物柜,增加主人的收納空間,黑色邊框長虹玻璃門,讓整個空間協調統一,大氣時尚,主人很滿意,不斷地夸贊對色彩的精準把握。

▲完工實拍圖 ©源于·云蘭裝潢
▲完工實拍圖 ©源于·云蘭裝潢
現代簡約風格的衣帽間以簡潔、流暢的線條和寬敞的空間感為主,營造出時尚、實用的氛圍。采用灰色通頂衣柜,與整個空間的色調相協調,同時增加了儲物空間和視覺的統一感。多面玻璃設計在滿足臥室空間隱私性的同時,也增加了空間感,使衣帽間看起來更加寬敞。
▲完工實拍圖 ©源于·云蘭裝潢
▲完工實拍圖 ©源于·云蘭裝潢
進門玄關采用中間鏤空通頂柜設計,體現生活“一半煙火,一半清歡”的理念??白色柜子是鞋柜,整面鞋柜滿足一家人鞋子的收納。黑色柜子是儲物柜,放一些比較雜的物品(快遞盒、各種囤貨、雨傘等),鞋柜和儲物柜都做了扣手槽設計讓生活更輕松。
▲完工實拍圖 ©源于·云蘭裝潢
北露臺是晾曬衣物的場所,一側洗衣機和水池,一側為儲物柜,超大玻璃天窗讓陽光柔和的照進來,很舒適、很愜意。極具“白墻黛瓦馬頭墻,回廊掛落花隔窗。”的徽派建筑甄格。

▲完工實拍圖 ©源于·云蘭裝潢
云蘭裝潢專做家裝20年,年輕家新標桿,6感年輕整裝,讓家常住青春里!云蘭裝潢一直致力于為廣大客戶提供高品質的服務,將幸福帶進千家萬戶,現在回頭客及轉介紹業務已占業務總量的4成以上!云蘭裝潢一直堅持免費上門量房,免費360°效果設計,免費清單報價,固定施工隊,工程不轉包不發包,靠譜年輕整裝就選云蘭裝潢!
靠譜裝新家熱線
4000-87-3339
掃一掃,有驚喜


您家舒適美麗家 要花多少錢?
3套設計方案免費一鍵獲取您家裝修報價
Copyright ? 2026 YUNLAN-DECORATION. ALL RIGHTS RESERVER