▲完工實拍圖 ©源于·云蘭裝潢
裝修預算:17.2萬 裝修總價:17.8萬
| 裝修主材 | |
|
客餐廳地面 |
實木復合地板 |
| 臥室地板 |
菲林格爾 |
| 乳膠漆 | 多樂士 |
|
廚衛衛生間地面 |
諾貝爾 |
該居室男女主人都是40歲左右的中年成功人士,生活品質要求高,對胡桃木家具有獨特理解。在軟裝和色彩上要求極簡,所以該套居室整體裝修風格是美式田園風格,背景墻沒有做以大面墻留白,僅用裝飾柜來修飾,沙發采用皮質沙發,體現美式的大氣時尚,有質感。
圖 賞
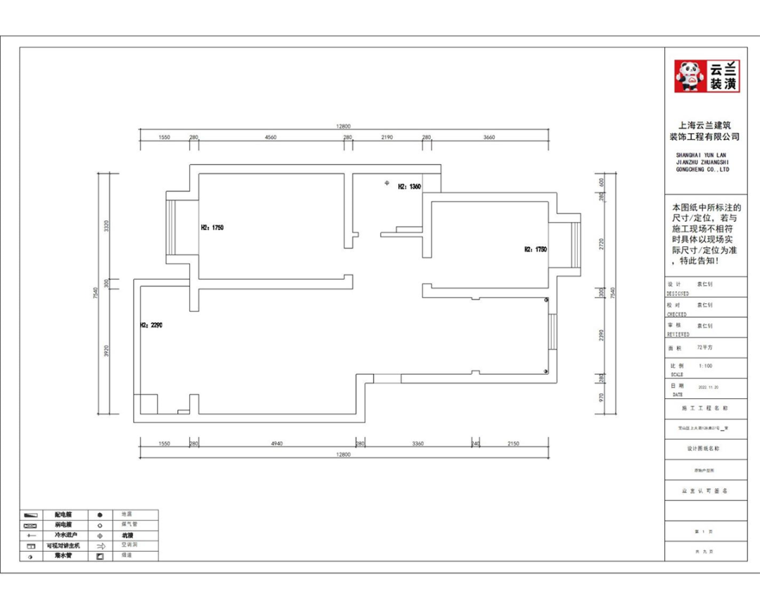
▲原始戶型圖
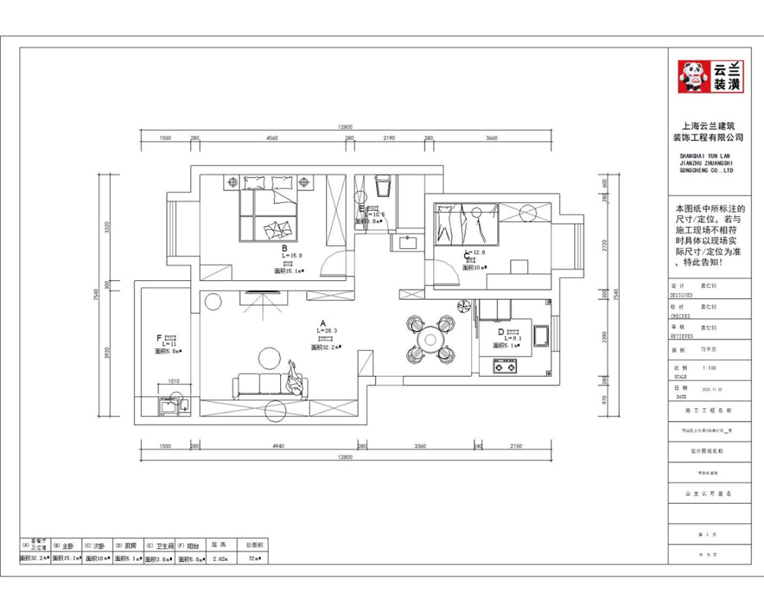
▲平面布置圖
▲完工實拍圖 ©源于·云蘭裝潢
客廳借用過道空間,大大提高了空間利用率。

▲完工實拍圖 ©源于·云蘭裝潢

▲完工實拍圖 ©源于·云蘭裝潢
▲完工實拍圖 ©源于·云蘭裝潢
主臥床頭背景白色,地面用胡桃色,L型大飄窗讓臥室空間具有延伸感,壁燈把整個空間點綴地豐富、有內涵。
▲完工實拍圖 ©源于·云蘭裝潢
次臥是孩子的空間,比較簡潔,墻面乳膠漆,色彩上干凈、簡練,空間上靈活自如,簡潔明亮。
▲完工實拍圖 ©源于·云蘭裝潢
廚房采用原木色系,使得櫥柜更有質感。
▲完工實拍圖 ©源于·云蘭裝潢
餐廳與廚房相通,增加了活動面積,實用性強,減少家庭聚會所帶來的空間壓力。
▲完工實拍圖 ©源于·云蘭裝潢
衛生間淋浴間與洗漱空間用透明玻璃分隔開來,做到了布局的干濕分離,利于打掃,且視野上更加寬闊

▲完工實拍圖 ©源于·云蘭裝潢
▲完工實拍圖 ©源于·云蘭裝潢
陽臺顏色以黑白為主,對比強烈、時尚大方,陽光柔和的照進來,很舒適、很愜意。
靠譜裝新家熱線
4000-87-3339
掃一掃,有驚喜


您家舒適美麗家 要花多少錢?
3套設計方案免費一鍵獲取您家裝修報價
Copyright ? 2026 YUNLAN-DECORATION. ALL RIGHTS RESERVER