▲完工實拍圖 ©源于·云蘭裝潢
本套房子面積100平,原來是兩室二廳的房子,有一間小臥室當成了書房,平時只有夫妻兩人居住。由于戶型比較完整,南北通透,房屋結構全是現澆剪刀墻結構,所以墻體都不能改,只是把餐廳和廚房打通,玄關和餐廳連成一體。
圖 賞
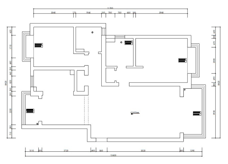
▲原始房型圖
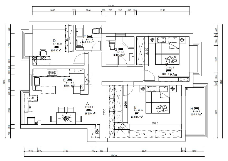
▲平面布置圖
▲完工實拍圖 ©源于·云蘭裝潢
主臥床頭背景淺灰色,地面用胡桃色,L型大飄窗讓臥室空間具有延伸感,棕色的床單把整個空間點綴地豐富、有內涵。
▲完工實拍圖 ©源于·云蘭裝潢
次臥是父母的空間,比較簡潔,做一個L型開放式衣帽間,墻面藍色乳膠漆,色彩上干凈、簡煉,空間上靈活自如,簡潔明亮。
▲完工實拍圖 ©源于·云蘭裝潢
廚房開放式,與餐廳相連,讓主人做飯又可以和客人互動,滿足主人對美食文化的追求,色調上以白色為主,配上黑色電器,高檔有神秘感。
▲完工實拍圖 ©源于·云蘭裝潢
餐廳與廚房相通,增加了活動面積,實用性強,減少家庭聚會所帶來的空間壓力。餐廳背面置放冰箱,大大增加了食品儲物的功能。
▲完工實拍圖 ©源于·云蘭裝潢
衛生間空間很大,淋浴間與洗漱空間用透明玻璃分隔開來,做到了布局的干濕分離,利于打掃,且視野上更加寬闊。
▲完工實拍圖 ©源于·云蘭裝潢
▲完工實拍圖 ©源于·云蘭裝潢
入門的玄關是精致簡約的抽屜,上方留白,整體高度低,方便擺放各種雜物,滿足戶主需求。
該居室男女主人對生活品質要求高,喜歡黑白灰色調,不喜歡家里很亂,對黑白灰風格有獨特理解,在軟裝和色彩上要求極簡,所以該套居室整體裝修風格是黑白灰風格,背景墻沒有做以大面墻留白,僅用掛畫來修飾,床采用黑色皮質床,體現黑白灰的大氣時尚和質感。
靠譜裝新家熱線
4000-87-3339
掃一掃,有驚喜


您家舒適美麗家 要花多少錢?
3套設計方案免費一鍵獲取您家裝修報價
Copyright ? 2026 YUNLAN-DECORATION. ALL RIGHTS RESERVER