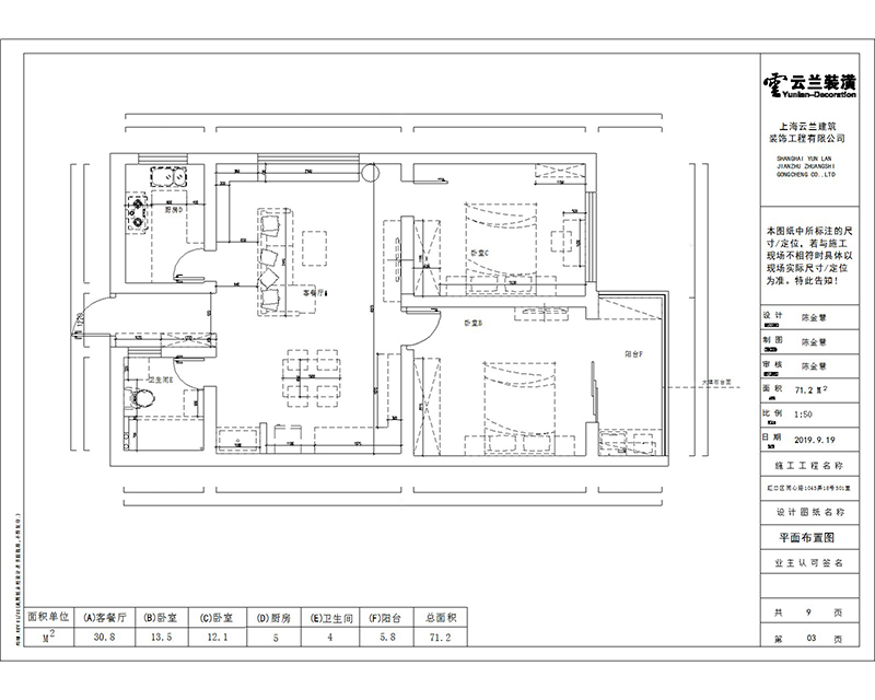
大多數人買房都只考慮房子的地段、交通、配套、樓層、房價等,很少去考慮房子本身的戶型結構好壞。而家庭裝修,新房裝修,房屋戶型好壞則會直接影響到后期居住的生活質量,所以我們買房時一定要看得懂戶型圖。那么,戶型圖怎么看?接下來跟著云蘭裝潢小編一起看看如何看懂戶型圖。
一、方向
房屋戶型的方向反映了房子的朝向,也是我們看房屋戶型的第一步。
一般來說,戶型圖上都會有方向標識,可以通過標識來判斷,如果沒有標注方向的,一般是默認為“上北下南左西右東”,主陽臺朝哪個位置,就代表房子的朝向。
知道了房子朝向就能判斷出房子的采光、通風情況等,比如是否西曬、東曬,冬夏季是否宜人等。
二、尺寸
房型圖中房子外圍標尺就是房子的尺寸,從這些標尺上可以看出房屋各個功能區的面積大小,包括長、寬尺寸,由這些數據能計算出房子的套內面積。
值得注意的是,不要看彩平戶型圖,因為上面家具的尺寸不一定正確,很容易迷惑人,導致選錯房屋面積。
有了這些標尺能計算出房子的開間、進深,判斷各個空間的大小比例是否合理,對以后裝修有一定幫助。
三、墻體
戶型圖中兩個空間會有一條線分割,線的顏色分黑色和白色這兩種,這些線其實是代表了墻體。
房屋墻體分為承重墻和活體墻,其中承重墻為黑色線條,承重墻是不能拆改的,否則會破壞房子的承重,而活體墻為白色,可以拆改。
四、分區
戶型圖中房屋空間都可以分區,一般分為動區、靜區、干區和濕區。其中動區是客廳、次衛、廚房、餐廳,靜區則是臥室、書房、主衛生間。
房子的分區非常重要,能直接影響到居住的舒適程度。好的房子,應該是干濕分離,動靜分區的,如果干濕不分,就會導致空間潮濕,動靜不分,就會影響我們的日常休息。
五、特殊標志
戶型圖上還有一些特殊標志,形狀奇特的東西,下面逐一介紹。
1、窗戶、飄窗、落地窗
窗戶在戶型圖里一般表現為長方形,里面有兩條橫線。通過窗戶的布局,可以知道房子的采光、通風情況,是否有暗衛,房間里有沒有飄窗。
2、開門方向
戶型圖會看到扇形的標志,其實這些扇形代表的就是門,以及門的打開方式。
3、空調主機位置
戶型圖還會有一小塊長方形區域,里面寫著A/C,其實這個就是放置空調主機的地方。以上就是關于戶型圖怎么看的內容介紹,大家在選購房屋時一定要對房型圖有所了解,只有看懂了才會知道所選的房子大小、布局等等,對以后房屋裝修規劃也會有很大幫助。
靠譜裝新家熱線
4000-87-3339
掃一掃,有驚喜


您家舒適美麗家 要花多少錢?
3套設計方案免費一鍵獲取您家裝修報價
Copyright ? 2026 YUNLAN-DECORATION. ALL RIGHTS RESERVER